Work
Contact
Work
Contact
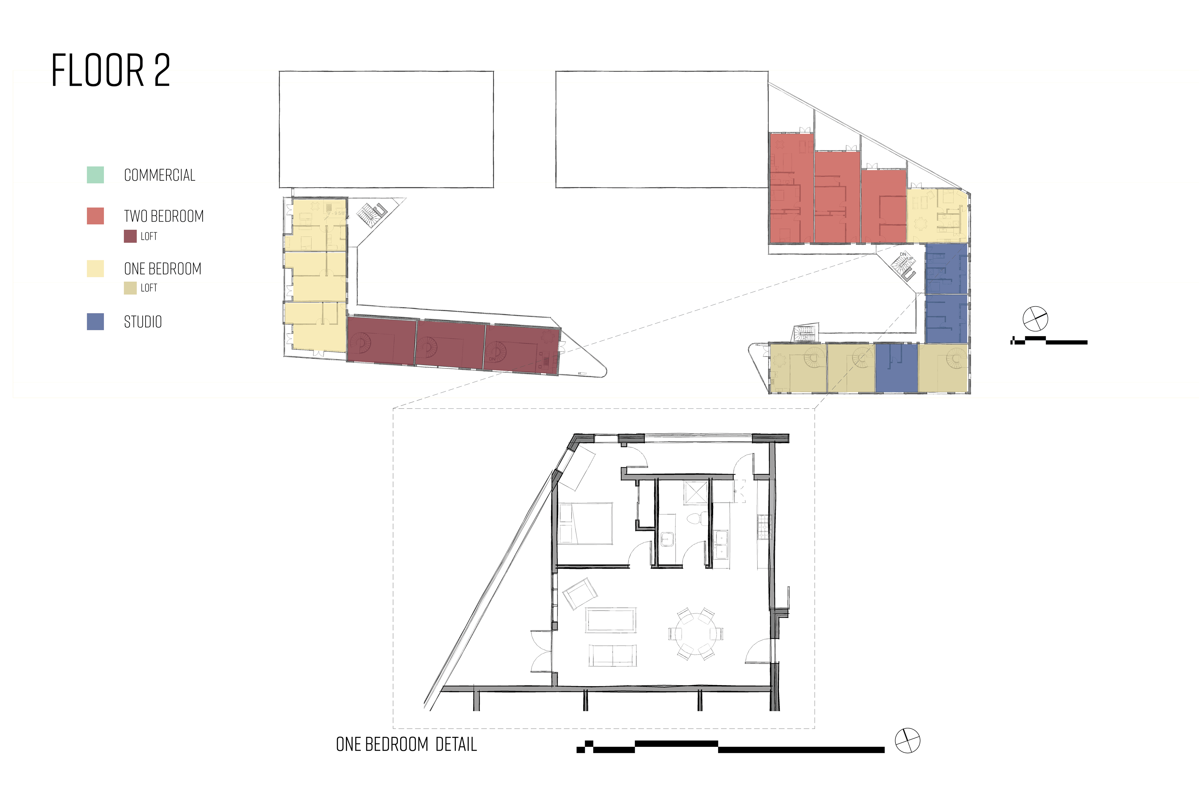
Trastevere Apartments
You may also like
Bridge Park
2017
Precedent Analysis: Fallingwater
2017
The Center
2018
Precedent Analysis: Clyfford Still Museum
2017
San Juan House
2018
Precedent Analysis: Garden for Peace
2018
Wetland Park - CU South Campus
2018
Research Greenhouse
2017
↑
Back to Top
Insert copy here, which should vary depending on your region.
Accept